ru en en

Долевое строительство


72-х кв. монолитный жилой дом по ул. 1 Мая в г. Орше

ОАО «Оршанский строительный трест № 18» приглашает принять участие в долевом строительстве 9-ти этажного 72-х квартирного монолитного жилого дома по ул. 1 Мая в г. Орше (район СШ №3).
Квартиры соответствуют современным требованиям и планировочным решениям. Высота этажа 2,8 м., остекление лоджий, металлическая входная дверь, окна поворотно-откидные с двухкамерным стеклопакетом. Система теплоснабжения комплектуется радиаторами и счетчиками поквартирного учета тепла.
Строительство жилого дома осуществляется практически в центре города, в районе с развитой инфраструктурой. В шаговой доступности имеются школы, детские сады, детская и взрослая поликлиники, банки, почта, аптеки, спортивный комплекс «Ледовая арена», стадион, парк, магазины, включая «Евроопт», «Соседи», остановки общественного транспорта.
Участвуя в долевом строительстве, вы получаете возможность осуществить строительство нового комфортабельного жилого помещения с поэтапным внесением денежных средств. А также Вы имеете возможность выбрать площадь и этажность строящейся квартиры по привлекательной цене и осуществлять при этом контроль строительства приобретаемого жилья.

Предлагаемые квартиры:
КвартираПлощадьКоличество в домеПримечание
1 комнатная43,44 м218 шт
2 комнатная56,42 м218 шт
2 комнатная65,87 м218 шт
3 комнатная73,38 м218 шт

Cтоимость 1 м2 без чистовой отделки 930$ (цена фиксированная на протяжении всего срока строительства).

Начало строительства - 2014 год.
Сдача в эксплуатацию - 2016 год.

Телефон для справок: 8(0216)21-17-78

Генплан монолитного домаТиповая секция монолитного дома
Генплан монолитного Типовая секция

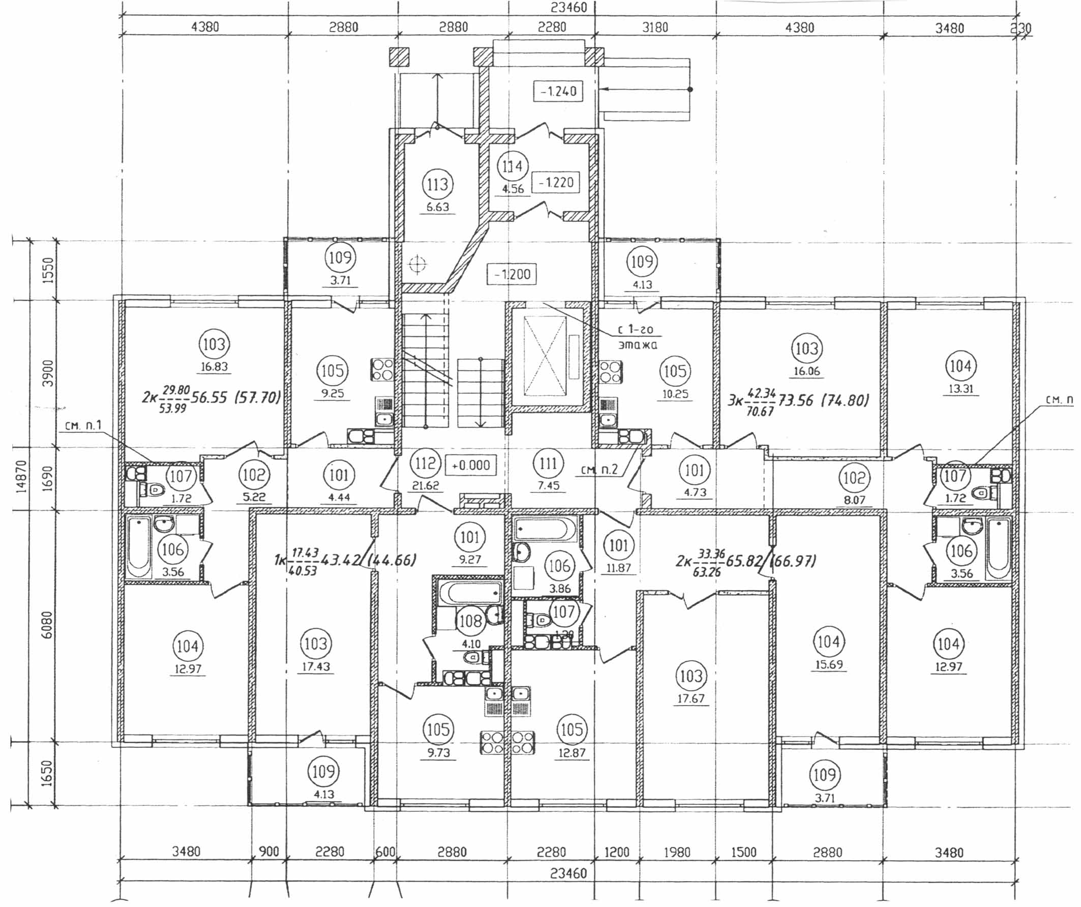
План типового этажа
План типового этажа 72 кв.ж.д. по ул. 1 Мая в г.Орше

Место строительства дома...
72 кв.ж.д. по ул. 1 Мая на карте


ПРОЕКТНАЯ ДЕКЛАРАЦИЯ
о долевом строительстве 72-х квартирного жилого дома по ул.1Мая в г. Орше

  1. Информация о застройщике:
Открытое акционерное общество «Оршанский строительный трест №18» (далее – Застройщик) – предприятие, зарегистрированное в Едином государственном регистре юридических лиц и индивидуальных предпринимателей 31 декабря 1999г. за №300053197, расположено по адресу: 211391, г. Орша, ул. Толстого, д.4, тел. 21 17 10. Режим работы: понедельник-пятница с 8-30 до 17-30, обеденный перерыв с 13-00 до 14-00. В течении трех лет, предшествующих опубликованию проектной декларации, ОАО «Оршанский строительный трест №18» не выступало в качестве застройщика, в качестве генподрядчика и субподрядчика принимало участие в строительстве следующих жилых домов:
п/пАдресВвод в эксплуатацию
В качестве генподрядчика:
1.Строительство сборно-каркасного жилого дома на пересечении ул. 1 Мая и ул. Свердлова в г. Орша11.2012г.
2.Многоквартирный жилой дом по ул.Белинского в г.Орша06.2012г.
3.Жилой дом №15 первой очереди застройки в микрорайоне «Заднепровье-3» г. Орша08.2012г.
4.Строительство жилого дома по ул.Оршанской в г.Барань10.2012г.
5.Многоквартирный жилой дом по ул. 1-го Мая, 60 в г.Орша12.2012г.
6.Жилой дом №2 первой очереди застройки в микрорайоне «Заднепровье-3» в г.Орша09.2012г.
7.60-квартирный жилой дом, ЖСПК «Андреевщинский дом» в д.Андреевщина Оршанского района02.2014г.
8.Жилой дом № 9 первой очереди застройки в микрорайоне «Заднепровье-3» в г.Орша06.2014г.
9.Жилой дом №27 второй очереди застройки в микрорайоне «Заднепровье-3» в г.Орша06.2014г.
10.Многоквартирный жилой дом по ул.Мира в г.Орша12.2014г.
В качестве субподрядчика:
1.Строительство многоквартирного жилого дома по ул.Островского в г.Орша с размещением на первом и втором этажах предприятий торговли и офисов12.2014г.
2.Многоквартирный жилой дом ГП-1 по просп. Строителей,79 в малоэтажной застройке микрорайона №7 в г.Бобруйске12.2014г.
3.199-квартирный жилой дом №24 по генплану в микрорайоне «Спутник» с благоустройством прилегающей территории в г.Могилеве. 3 пусковой комплекс. Секция в осях 6-811.2014г.
  2. Информация о проекте строительства:
Цель проекта строительства - строительство 9 этажного жилого дома с целью создания объектов долевого строительства для продажи. Расположение объекта жилой дом расположен по ул.1Мая в г. Орше напротив средней школы №3.
Право на временное пользование земельным участком площадью 0,514 га под строительство объекта подтверждается решением Оршанского районного исполнительного комитета №81 от 23 января 2015г.
Проектом определено места размещения здания жилого дома, парковок на 21 машину. Запроектированы проезд, разворотная площадка с асфальтобетонным покрытием. Предусмотрены тротуары, дорожки и площадки с покрытием из тротуарной плитки. Запроектированы площадки для отдыха и хозяйственных целей. Проектно-сметная документация прошла в установленном порядке государственную экспертизу, заключение от 24.11.2014г. №1086-30/14. Начало строительства – декабрь 2014г., нормативный срок строительства 9,5 месяцев, планируемое окончание строительства – октябрь 2015г.
  3. Основные характеристики объекта.
72 квартирный жилой дом– здание 9-ти этажное, 2-х секционное, с техническим подпольем, наружными стенами монолитными железобетонными с утеплением и блоков ячеистого бетона, с холодным чердаком, плоской крышей и организованным внутренним водоотводом. В доме предусмотрены 1, 2, 3-х комнатные квартиры с раздельными и совмещенными санитарными узлами, лоджии остеклены. Жилой дом оборудован лифтами и мусоропроводом. Проектом предусмотрена подготовка под внутреннюю отделку квартир без чистовой отделки. Предусмотрена установка газовой плиты со счетчиком, электропроводка комплектуется розетками и выключателями, система теплоснабжения комплектуется радиаторами и системой регулировки подачи тепла, разводка холодного и горячего водоснабжения комплектуется счетчиками, не комплектуется смесителями, раковинами и ванной, сеть канализации комплектуется унитазом. Полы в жилых помещениях, кухнях, санузлах – подготовка из цементно-песчаной стяжки с самонивелирующим слоем, без чистового покрытия. Предусмотрена внутренняя отделка мест общего пользования из отделочных материалов отечественного производства. В местах общего пользования – керамическая плитка ГРЭС на клею. В наружной отделке фасадов применена улучшенная штукатурка с окраской акриловой краской, оконные блоки деревянные, поворотно-откидные с двухкамерным стеклопакетом, на лоджиях – раздвижные алюминиевые окна с одинарным остеклением.
Состав общего имущества в многоквартирном жилом доме, которое будет находиться в общей долевой собственности: лестничные клетки, лестницы, лифты, лифтовые и иные шахты, коридоры, крыши, технические этажи, подполье, другие места общего пользования, несущие, ограждающие ненесущие конструкции, механическое, электрическое, сантехническое и иное оборудование, находящиеся за пределами или внутри жилых и (или) нежилых помещений, элементы озеленения и благоустройства, а также иные объекты недвижимости, служащие целевому использованию здания.
Количество квартир – 72, из них однокомнатных – 18 квартир (площадью 43,44 м2), двухкомнатных – 36 квартир, (из них 18 шт. площадью 56,42 м2 и 18 шт. площадью 65,87 м2), трехкомнатных -18 квартир (площадью 73,38 м2). Общая площадь жилого дома – 4998,92 м2.
Стоимость 1м2 общей площади без чистовой отделки составляет 930$ (цена фиксированная на протяжении всего срока строительства).



Этапы строительства 72-х кв. монолитного жилого дома по ул. 1 Мая в г. Орше


08.07.2016

08.07.2016_Этап строительства 08.07.2016_Этап строительства

12.05.2016

12.05.2016_Этап строительства 12.05.2016_Этап строительства

29.03.2016

29.03.2016_Этап строительства 29.03.2016_Этап строительства
29.03.2016_Этап строительства 29.03.2016_Этап строительства

11.03.2016

11.03.2016_Этап строительства 11.03.2016_Этап строительства
11.03.2016_Этап строительства 11.03.2016_Этап строительства

10.02.2016

10.02.2016_Этап строительства 10.02.2016_Этап строительства

13.01.2016

13.01.2016_Этап строительства 13.01.2016_Этап строительства

18.12.2015

18.12.2015_Этап строительства 18.12.2015_Этап строительства
18.12.2015_Этап строительства 18.12.2015_Этап строительства

10.11.2015

10.11.2015_Этап строительства 10.11.2015_Этап строительства
10.11.2015_Этап строительства 10.11.2015_Этап строительства

06.10.2015

06.10.2015_Этап строительства 06.10.2015_Этап строительства
06.10.2015_Этап строительства 06.10.2015_Этап строительства

11.08.2015

11.08.2015_Этап строительства 11.08.2015_Этап строительства
11.08.2015_Этап строительства 11.08.2015_Этап строительства

02.07.2015

02.07.2015_Этап строительства 02.07.2015_Этап строительства

02.06.2015

02.06.2015_Этап строительства 02.06.2015_Этап строительства
02.06.2015_Этап строительства 02.06.2015_Этап строительства

29.04.2015

29.04.2015_Этап строительства 29.04.2015_Этап строительства

07.04.2015

07.04.2015_Этап строительства 07.04.2015_Этап строительства

05.03.2015

05.03.2015_Этап строительства 05.03.2015_Этап строительства

02.02.2015

02.02.2015_Этап строительства 02.02.2015_Этап строительства

22.01.2015

22.01.2015_Этап строительства 22.01.2015_Этап строительства
FreeCurrencyRates.com

счетчик посещений

© 2014, ОАО "Оршанский стройтрест №18"

Рейтинг@Mail.ru